The Mow, Meppershall, SG17 5SA

Prices from £584,995
Sold out Dec 2024

An exclusive development by Blakeney Homes. This exclusive, private development comprises just ten detached homes, offering generously proportioned accommodation with a choice of 4 or 5 bedrooms.


Bedrooms
4-5
Bathrooms
2-3
Receptions
2-3

Key features

  • West or South facing rear gardens
  • Single or double garage to all properties
  • High specification throughout
  • Energy efficient

Brochure

The Mow, Meppershall, SG17 5SA

PDF ‐ 7.52 MB

Download brochure

New Homes office

31 & 32 Bridge Street
Hitchin
SG5 2DF

Telephone
01462 453195
Email
newhomes@ashtons.co.uk

Virtual tour


Property description

This exclusive development is located in the peaceful and sought-after Hilltop village of Meppershall, close to open countryside, but within easy reach of the local town of Shefford and the historic market town of Hitchin. For local amenities, the village benefits from a post office and village store, a small bakers and café, together with St Mary's Church and a reputable school - Meppershall Church of England Academy. There is a friendly village community with regular social and sporting activities & clubs, in the newly built village hall. The surrounding countryside has many footpaths and bridleways and is close to the Chiltern Hills area of natural beauty.

The Location

Meppershall is perfectly situated for access to the A1 and A6, both of which can be reached in under 15 minutes while the M1 (Jct 12) is less than 25 minutes away. Bedford (12 miles), Stevenage (12 miles) and Milton Keynes (20 miles) offer comprehensive amenities, good shopping and leisure facilities. For the perfect family day out, Shuttleworth Estate, including the house and gardens, is close by and hosts regular events throughout the year, and Wrest Park Country Estate has a beautiful country house and gardens.

For commuters, the nearest train station is Arlesey (5 miles) which offers services to London Kings Cross and St Pancras in 40 minutes and to London Euston in just under an hour. Hitchin has a fast, frequent rail service in 25 minutes. For international travel, Luton Airport is under 15 miles away. Hitchin (7 miles) is a desirable market town, full of character and charm. It provides extensive shopping and recreational facilities. The town boasts picturesque medieval and Georgian buildings, a church and river through the centre, and over recent years has developed its own exciting and vibrant modern cafe culture. It offers an excellent choice of specialist shops and boutiques, a weekly outdoor market and a fantastic range of both chain and independent restaurants, wine bars and cafes.


Price and availability

Plot
Type
Style
Price
Availability
Plot
Plot 1
Type
4 bedroom house
Style
Detached
Price
£599,995
Availability
Sold
Plot
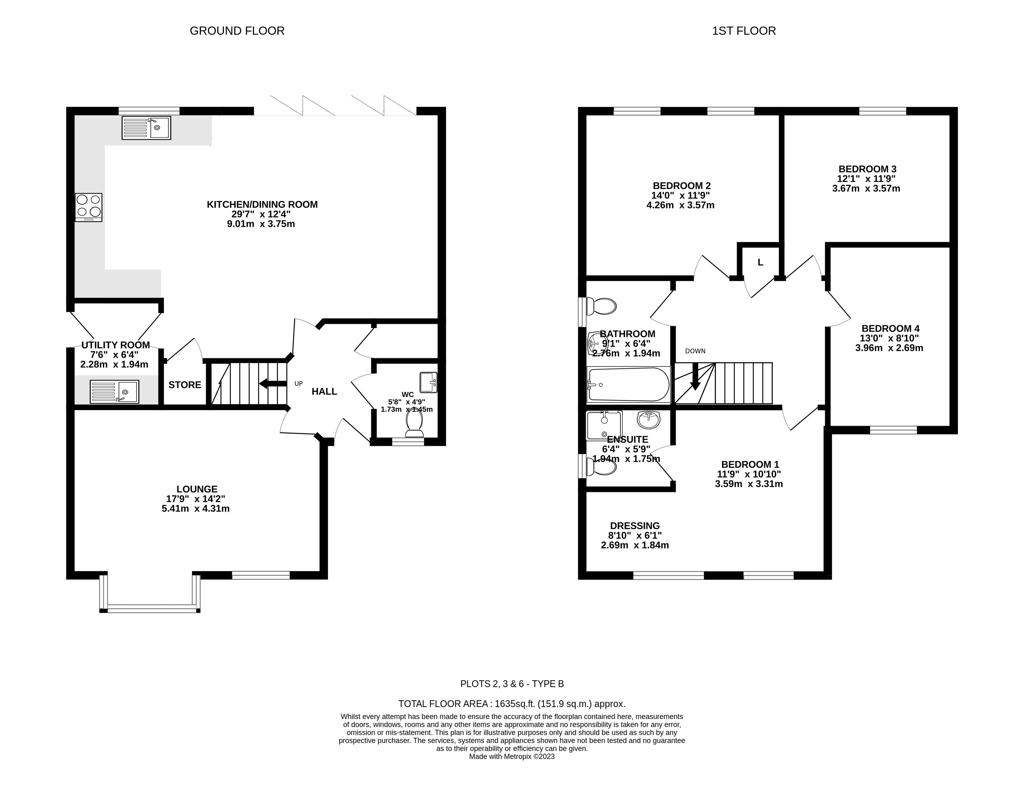
Plot 2
Type
4 bedroom house
Style
Detached
Price
£619,995
Availability
Sold
Plot
Plot 3
Type
4 bedroom house
Style
Detached
Price
£614,995
Availability
Sold
Plot
Plot 4
Type
5 bedroom house
Style
Show Home
Price
£774,995
Availability
Sold
Plot
Plot 5
Type
4 bedroom house
Style
Detached
Price
£584,995
Availability
Sold
Plot
Plot 6
Type
4 bedroom house
Style
Detached
Price
£619,995
Availability
Sold
Plot
Plot 7
Type
5 bedroom house
Style
Detached
Price
£749,995
Availability
Sold
Plot
Plot 8
Type
5 bedroom house
Style
Detached
Price
£824,995
Availability
Sold
Plot
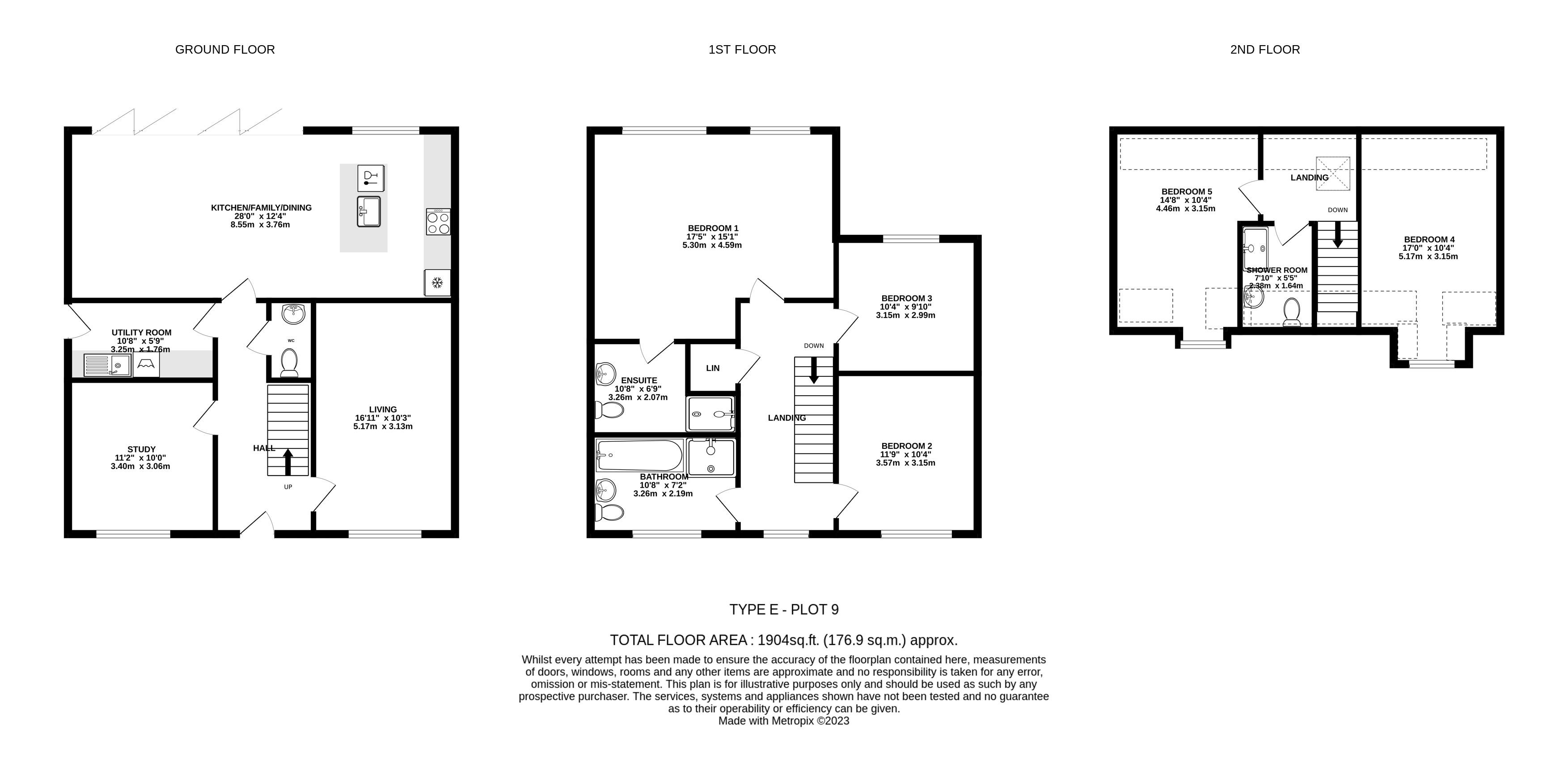
Plot 9
Type
5 bedroom house
Style
Detached
Price
£729,995
Availability
Sold
Plot
Plot 10
Type
5 bedroom house
Style
Detached
Price
£875,000
Availability
Sold

Floor plans


Site plan

Local area information