Leaside Close, Welwyn Garden Cit, AL8 7DY

Prices from £535,000
Sold out

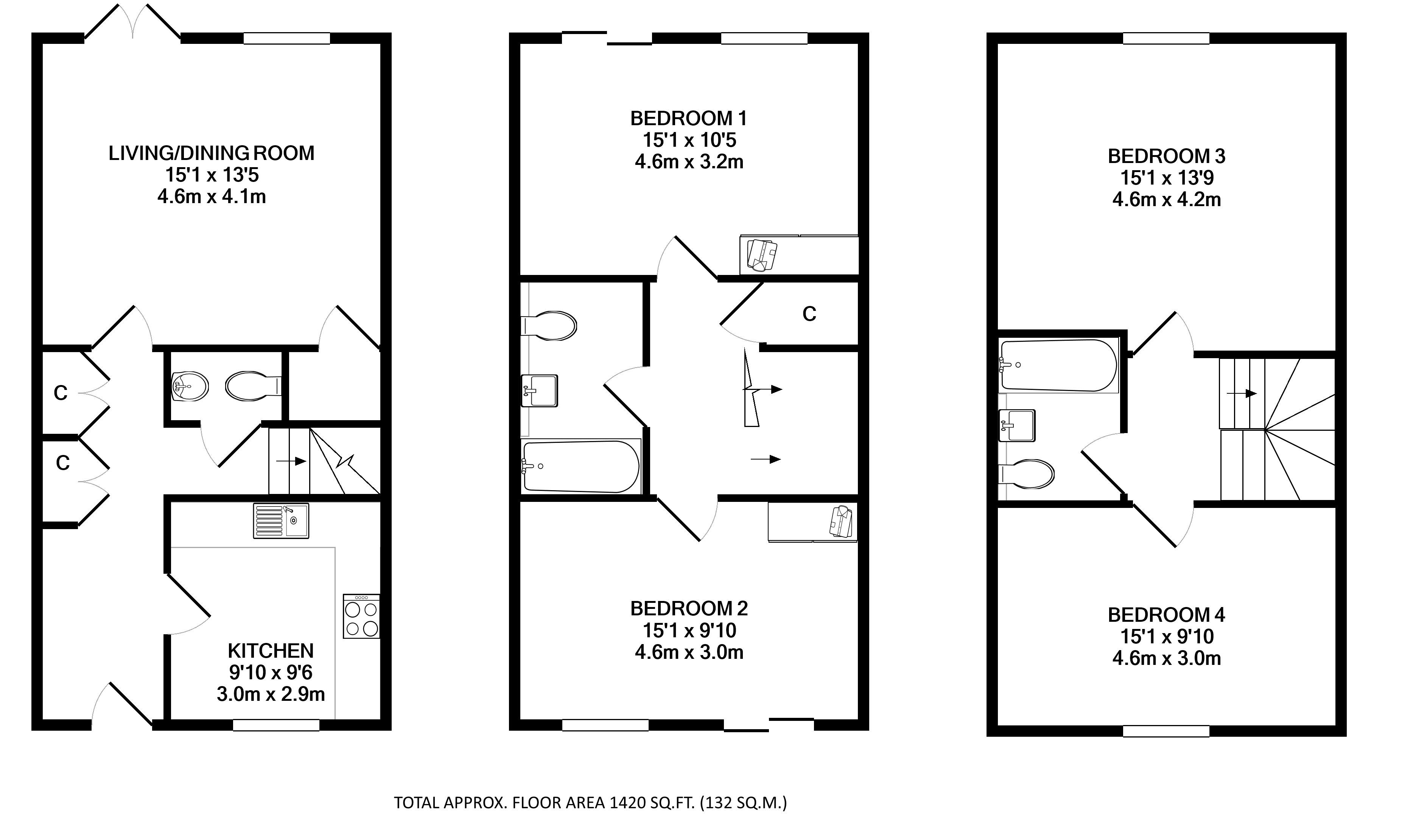
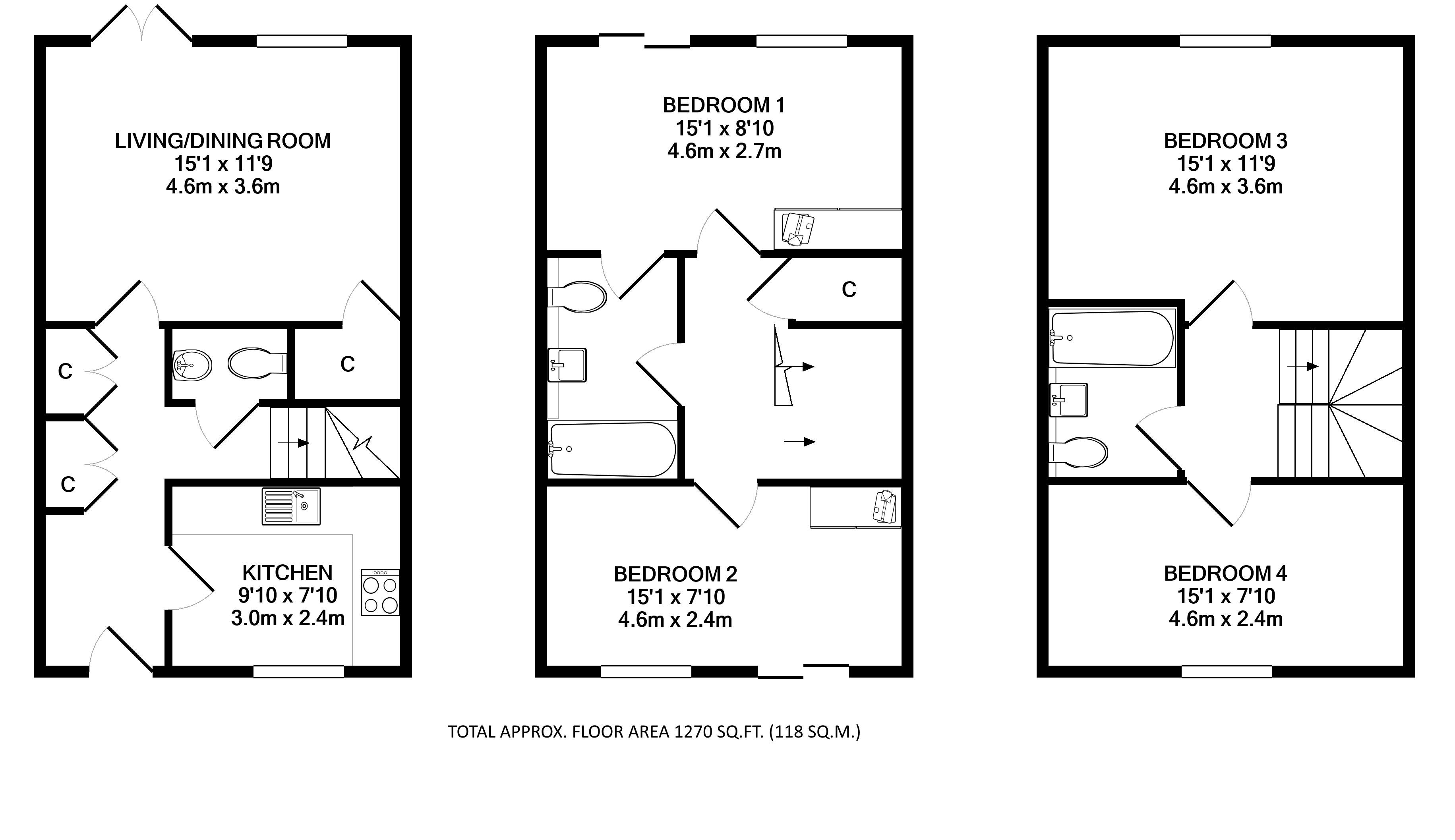
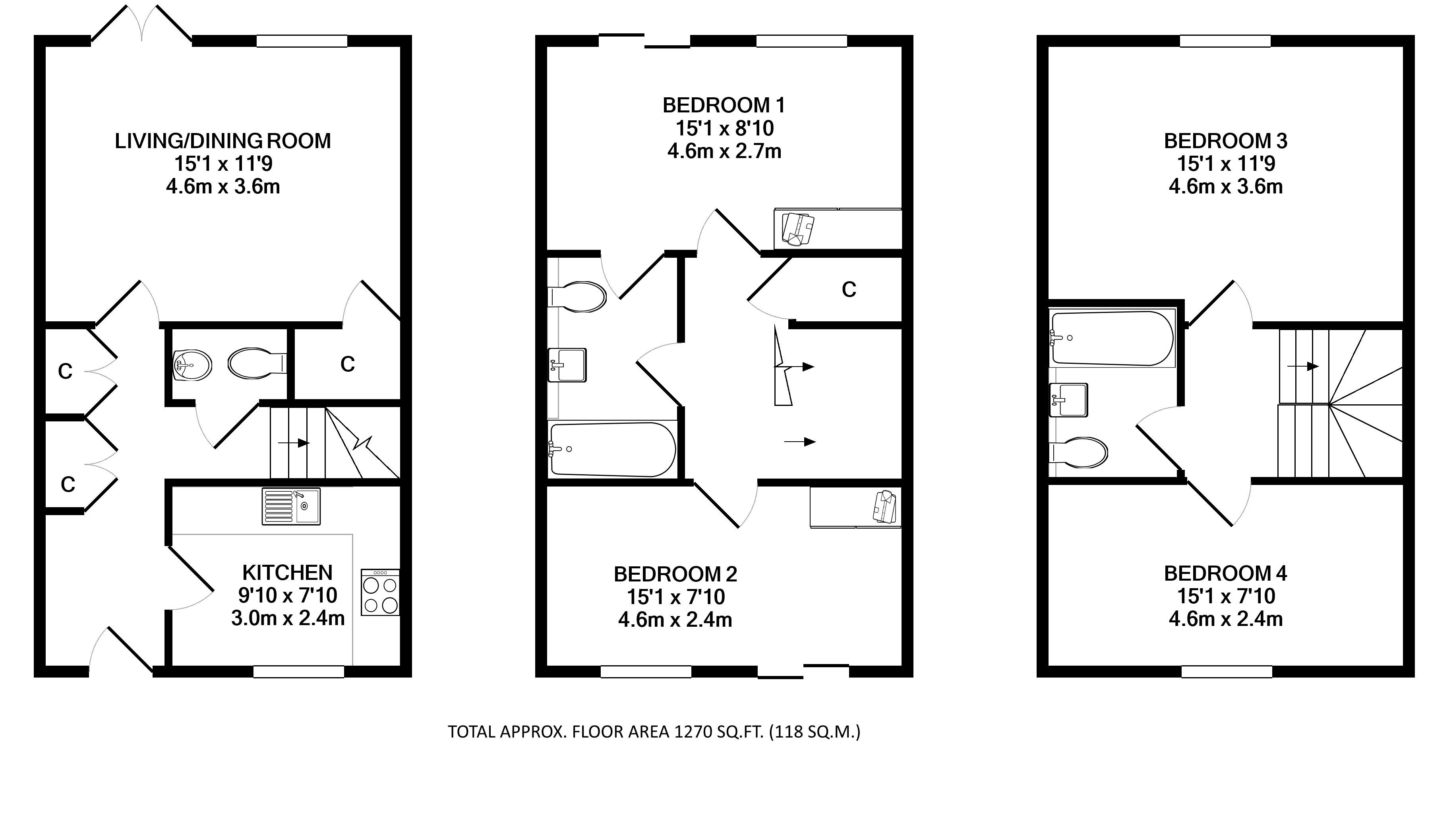
Leaside Close is a small gated development of just eight townhouse mews style four bedroom homes


Bedrooms
4
Bathrooms
2
Receptions
2

New Homes office

31 & 32 Bridge Street
Hitchin
SG5 2DF

Telephone
01462 453195
Email
newhomes@ashtons.co.uk

Each of these homes is finished to an exceptionally high standard with underfloor heating to the ground floor, fitted kitchen with inset sink, quartz worktops and Siemens integrated appliances including an oven, induction hob and integrated dishwasher and fridge/freezer. LED feature lighting and glass splash-backs complete the clean, modern lines of the design.

The bathroom suites feature Hansgrohe and Duravit fittings complemented by high-end Dansani Vanity units. Ted Todd engineered oak flooring enhances the up-market, contemporary style of these homes.

Everything within the houses is included as standard, from the built-in wardrobes to two bedrooms, all flooring, appliances, WIFI enabled speaker system and video entry system.

Externally each property is offered with 3 parking spaces all set within this private gated community.


Floor plans


Site plan

Local area information