Westbourne Mews, St. Albans, Hertfordshire, AL1 1LS

£1,750 PCM
Bedrooms
2
Bathrooms
1
Receptions
1
Council Tax:
D
EPC:
E

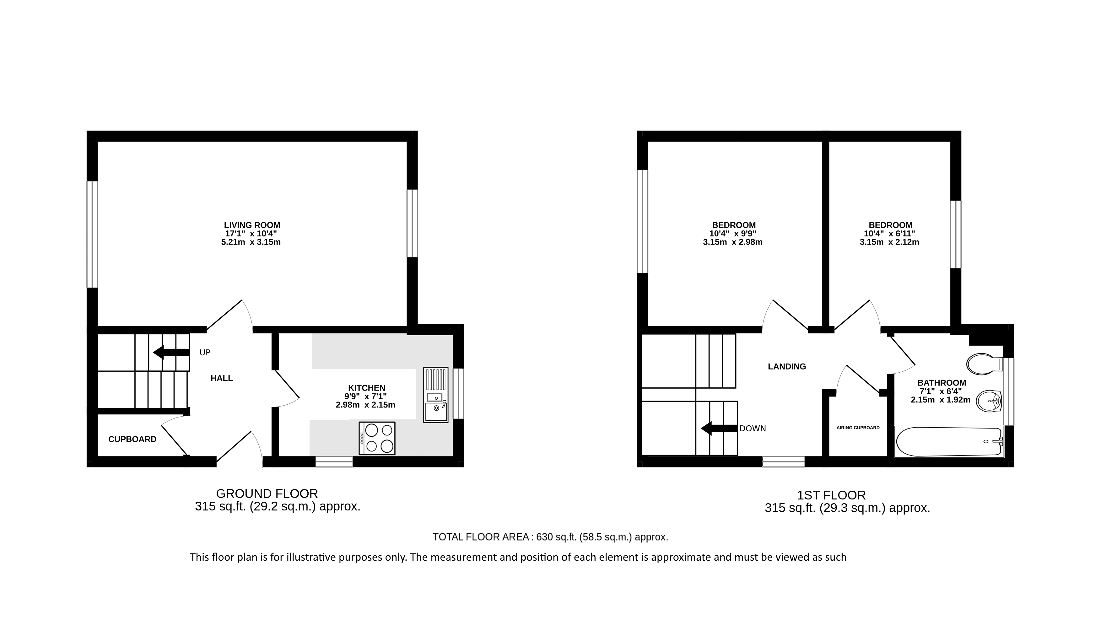
A two double bedroom house superbly located in the heart of St Albans City Centre. This charming property has the further considerable advantage of a garage and is located within a short walk of the mainline station.

Tucked away in a quiet location off London Road, and with easy access to a wide range of amenities, this two bedroom house has a private front door opening into a bright hallway and a brand new contemporary fully fitted dual aspect kitchen.

There is a large dual aspect reception room which provides ample space for both living and dining. Stairs lead to the first floor where there are two double bedrooms, and the fully tiled bathroom with white suite, shower over the bath and a window to the front. The property has the unusual benefit of a garage, positioned within sight of the living room, and we have been advised that it may be possible to lease a further separate car parking space close by, if required.

Westbourne Mews is a small development of contemporary properties in a superb city centre location. Positioned at ground floor level close to The Maltings Shopping Centre, there is a vast array of restaurants, cafes, bars and shops close by. The mainline station is less than a mile away, with St Albans Abbey and Verulamium Park within a short stroll.

Council Tax Band: D
Council Tax Payable: £2,257.13
Holding Deposit: £461.54
Total Deposit: £2,307.69

Whether you’re looking to
  • buy
  • sell
  • rent
  • let
  • buy
we would love to help.