Woodlands, Brookmans Park, Hatfield, Hertfordshire, AL9 7AN

Sold Oct 2023
£1,350,000
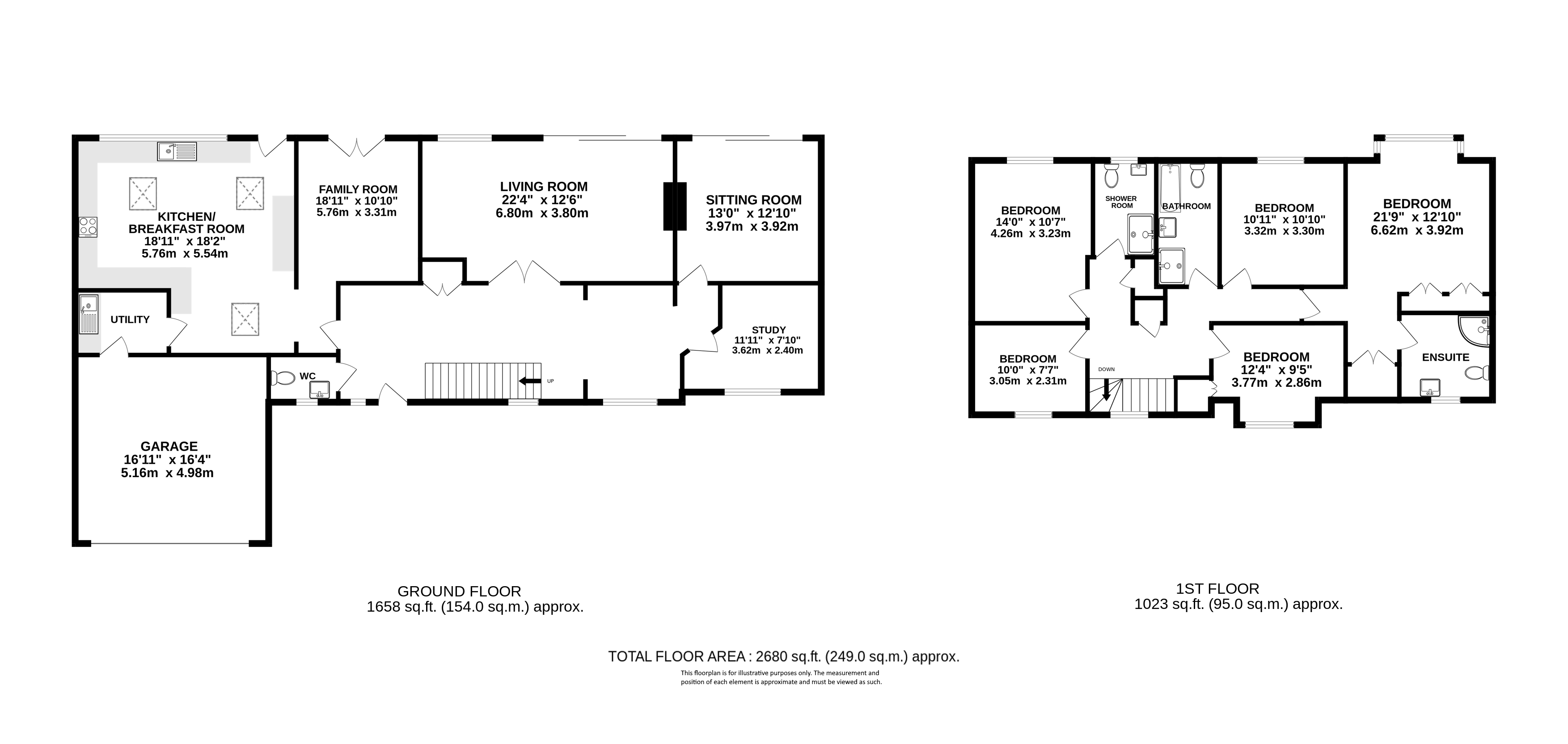
Bedrooms
5
Bathrooms
3
Receptions
4
Council Tax:
G
EPC:
D
Freehold

This exceptional five bedroom detached residence is situated in a popular cul-de-sac close by local shops and rail services. The property benefits from three bathrooms, a large rear garden and ample parking to the front.

Whether you’re looking to
  • buy
  • sell
  • rent
  • let
  • buy
we would love to help.