Aspect House, Hatfield Rise, Hatfield, AL10 8FJ

Sold Aug 2023
£363,000
Bedrooms
2
Bathrooms
2
Receptions
1
Leasehold

Aspect House is the next phase of 1 & 2 bedroom apartments at the popular Hatfield Rise development. Comprising 24 one and two bedroom apartments with balconies and allocated parking.

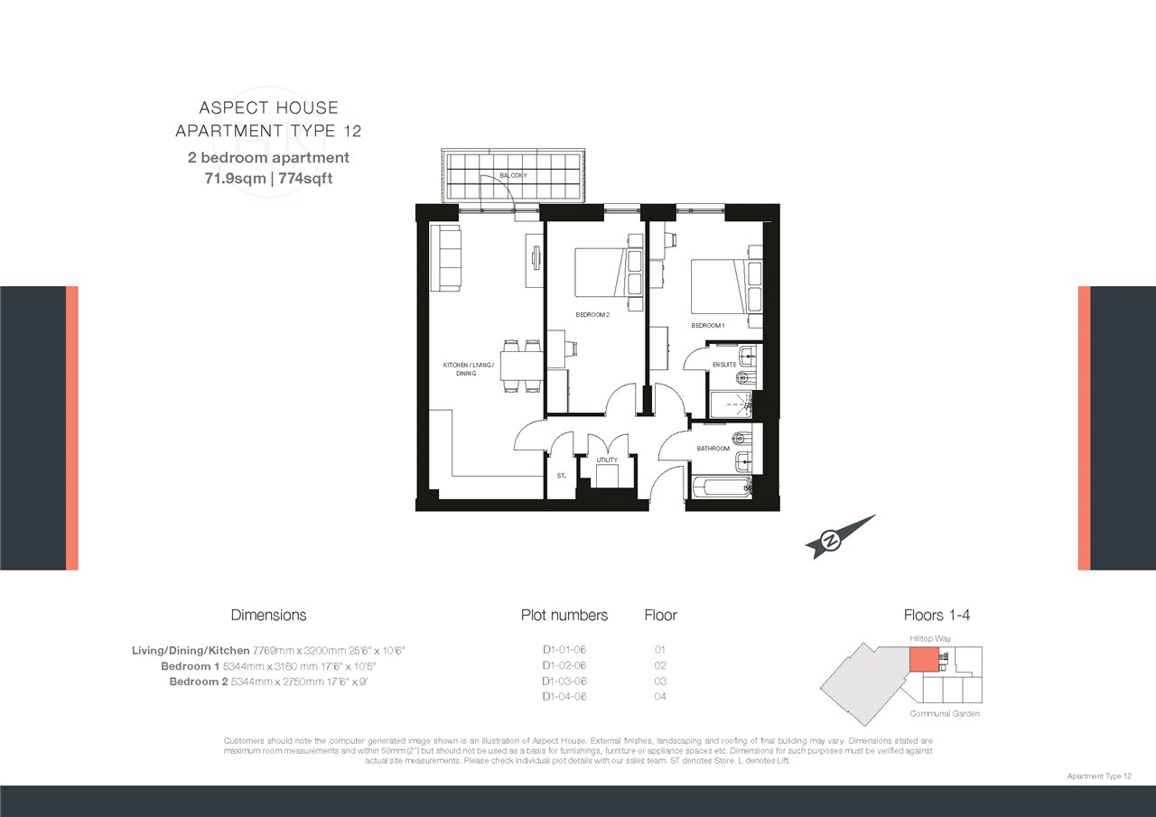
Plot 24 (SOLD) is a two bedroom, two bathroom top floor apartment measuring 774 sq ft with private balcony and parking.

Hatfield Rise is the impressive new development leading Hatfield’s bold and ambitious regeneration plan to provide contemporary homes to new and existing residents who love the local community, its location, and the unique amenities which the area has to offer.

Built by one of the UK’s foremost five-star house builders, this fantastic new community at Hatfield Rise consist of stylish one and two-bedroom apartments and elegant three-bedroom townhouses as well as a range of amenities including retail units, doctors surgery and play area. A new green space is at the heart of the development, with the homes set amidst attractive landscaped gardens and tree-lined streets.

Hatfield Rise is an exciting new destination that makes the most of a superb location. Just south of the town centre, minutes from the Galleria Shopping Centre, the University of Hertfordshire, and Hatfield Business Park: Hatfield Rise is the perfect place to stay connected and call home.

NB: Internal photos are of show home from previous phase of the development.

Estimated Service Charge TBC

Whether you’re looking to
  • buy
  • sell
  • rent
  • let
  • buy
we would love to help.