Sharose Court, Hicks Road, Markyate, AL3 8JH

Let Agreed
£1,850 PCM
Bedrooms
4
Bathrooms
2
Receptions
1
Council Tax:
E
EPC:
C

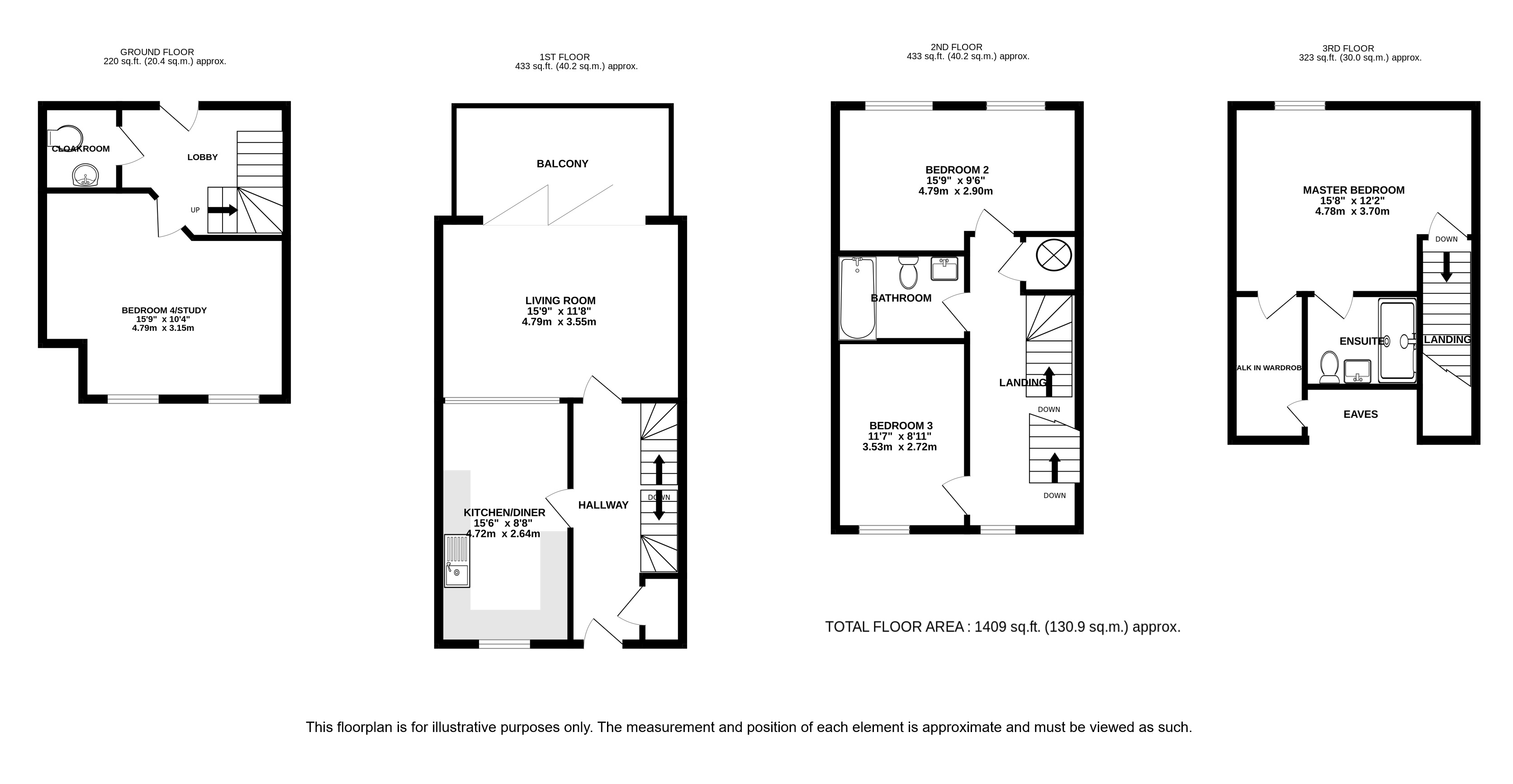
Superb four bedroom townhouse, located close to the centre of Markyate.

This excellent modern home offers a flexible and versatile layout combined with elegant and stylish fittings, perfect for busy family lifestyles.

Steps to the front of the property lead up to the entrance. An attractive hallway opens into the living accommodation with wood flooring running throughout. The kitchen/diner area is fitted with a luxury range of gloss wall and base units and integrated appliances. A spacious and light living room enjoys bi-fold doors opening onto a balcony allowing the outside in. The ground floor accommodation offers a cloakroom and bedroom/study. An external door leads from this level out to private parking.

On the first floor there are two double bedrooms and a stylish tiled bathroom. The master suite is on the top level and includes a large bedroom, with luxurious tiled en-suite shower room and a walk-in wardrobe.

EPC rating C
Council Tax Band E

Sharose Court is a short walk from Markyate High Street which offers a good range of amenities to meet everyday needs including a range of shops, local pubs and restaurants. The property is also walking distance to the highly regarded village primary school and within the catchment area for outstanding secondary schools in Harpenden. The larger towns of Harpenden and St Albans are a short drive away and offer wider amenities and fast and efficient rail links into London. M1 Junction 9 and Luton airport are also within easy reach.

Council Tax Band: E
Council Tax Payable: £
Holding Deposit: £426.92
Total Deposit: £2,134.61

Whether you’re looking to
  • buy
  • sell
  • rent
  • let
  • buy
we would love to help.