Birch Tree Gardens, St Albans, AL3 6EW

Prices from £775,000

Birch Tree Gardens is an exclusive collection of just four exceptional detached homes located in one of St Albans' most intimate new developments.


Bedrooms
4
Bathrooms
3
Receptions
2

Key features

  • Exclusive Boutique Development - Only 4 Distinctive Homes
  • Premium St. Albans Location - St Albans Girls School is within walking distance
  • Immediate Availability - Move In Ready Summer 2025
  • Generous Family Living - 4 Double Bedrooms, 3 Bathrooms
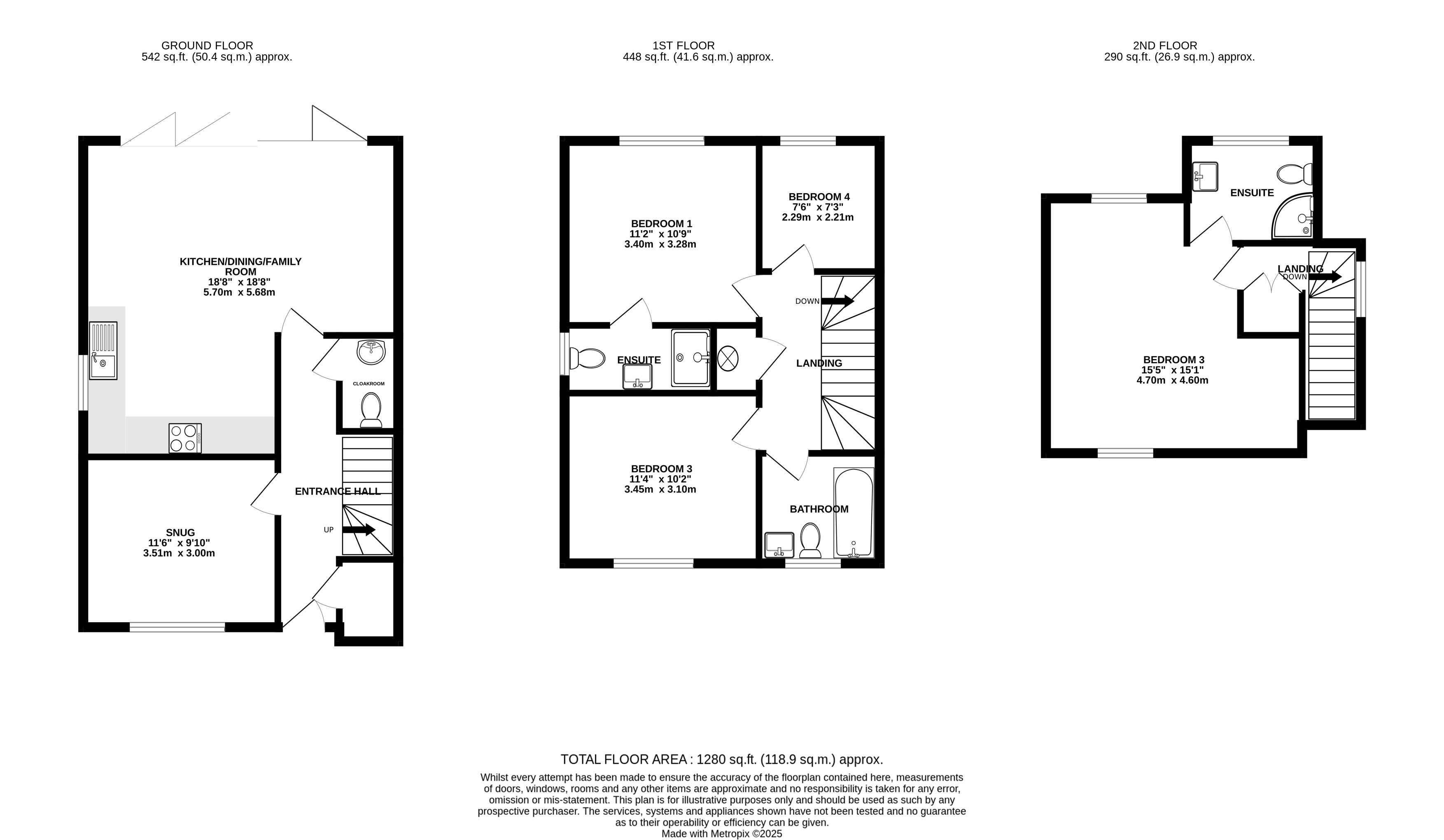
  • Contemporary Open-Plan Design - 1,280-1,462 sq ft
  • 10-Year New Build Warranty - Complete Peace of Mind
  • Chain Free Purchase - Seamless Transaction
  • Off-Street Parking - Convenience Guaranteed

New Homes office

31 & 32 Bridge Street
Hitchin
SG5 2DF

Telephone
01462 453195
Email
newhomes@ashtons.co.uk

50% NOW RESERVED - Discover the rare opportunity to secure one of just four exceptional detached homes at Birch Tree Gardens, St. Albans' most intimate new development.

In an era of large-scale housing estates, Birch Tree Gardens offers something truly special - exclusivity by design.

With only four carefully crafted homes, this boutique development by renowned builders Crossan Homes ensures you'll never feel lost in the crowd.

Each property has been meticulously designed to maximise space and light, featuring four generously proportioned double bedrooms and three sophisticated bathrooms. The heart of each home is the expansive open-plan kitchen, living and dining area - perfect for modern family life whilst maintaining the intimate feel that makes these homes so desirable.

Why Choose Birch Tree Gardens?

Intimate Community - Know your neighbours in this select development

Premium Specification - High-end finishes throughout reflecting St. Albans' discerning standards
Established Location - Birchmead Close's proven desirability

Investment Security - Limited supply ensures strong future value

Move-In Ready - Summer 2025 completion for immediate enjoyment

This is selective living at its finest - where quality trumps quantity and your home remains as exclusive as your lifestyle deserves.

With limited availability remaining, early viewing is essential to avoid disappointment.

 

Location

Located in one of Hertfordshire's most coveted locations, St. Albans consistently ranks as one of the UK's most desirable places to live. This historic cathedral city offers the perfect blend of heritage charm and modern convenience, with excellent transport links to London (just 20 minutes by train), outstanding schools including the renowned St. Albans School and St. Albans Girls' School, and a vibrant city centre filled with boutique shops, restaurants, and cultural attractions.

The AL3 postcode places you in a particularly sought-after residential area, with easy access to both the city centre and surrounding countryside, whilst benefiting from excellent local amenities and transport connections.


Price and availability

Plot
Type
Style
Price
Availability
Plot
Plot 2
Type
4 bedroom house
Style
Detached
Price
£775,000
Availability
Sale Agreed
Plot
Plot 4
Type
4 bedroom house
Style
Detached
Price
£875,000
Availability
Sale Agreed

Floor plans

Local area information

Request a viewing